Смеситель лопастной для производства биологически активных добавок (БАД), лечебного, диетического питания, спортивного питания, лечебной косметики и др.
|
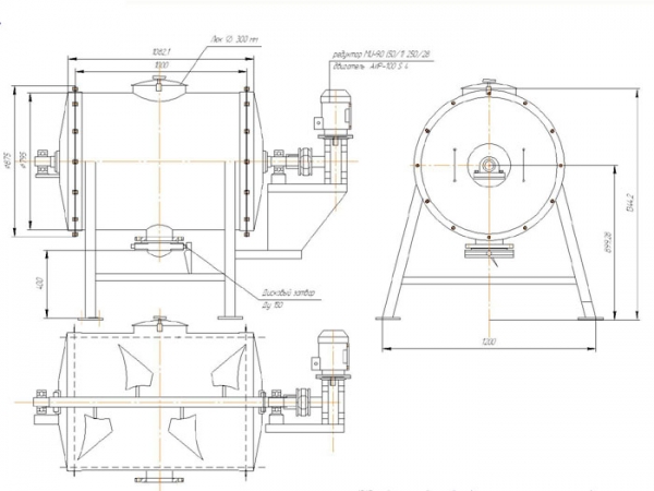
Лопастной смеситель. В лопастных смесителях сыпучие пищевые продукты перемешиваются лопастями, закрепленными, как правило, на горизонтальном валу. Лопастные смесители смесители бывают непрерывного и периодического действия. ![]() В лопастных смесителях непрерывного действия лопасти закрепляются на валу по винтовой линии, что обеспечивает одновременное перемешивание и перемещение продукта вдоль вала. Для обеспечения необходимого качества перемешивания сыпучих продуктов в лопастном смесителе непрерывного действия экспериментально устанавливается оптимальное время смешивания, которое должно соответствовать времени перемещения сыпучих продуктов в смесителе от места загрузки к месту выгрузки. Это время можно изменять путем изменения числа оборотов вала с лопастями, а также угла поворота лопастей относительно вала. В лопастных смесителях периодического действия продукт обычно перемешивается радиальными лопастями, несколько повернутыми относительно оси вращения . Такое устройство рабочих органов обеспечивает перемешивание с одновременной циркуляцией продукта в корыте смесителя. Типы рабочих органов лопастного смесителя ![]() Внешний и внутренний вид лопастного смесителя ![]() Схема устройства лопастного смесителя ![]() Заводские испытания лопастного смесителя ![]() |
Товар добавлен в корзину




